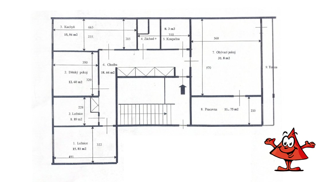
Pronájem zrekonstruovaného světlého bytu o užitné ploše cca 135 m2 5+1+zasklená lodžie + 2xWC + 2 x koupelna + garáž (+ možnost další garáže) + sklepní kóje, 122,9 m2 + zasklená prostorná lodžie 10 m2 + sklepní kóje 2,7 m2 + garáž. Byt v cihlovém domě v klidné vilové čtvrti Praha 8 – Libeň, ul. Přádova - jde o místo cca 300m vzdálené od tramvajové zastávky Hercovka a cca 500 m od stanice metra Kobylisy (linka C), kde se kříží další tramvajové linky. Místo je to tedy s výbornou dopravní obslužností, přičemž se v okolí celkem bezproblémově parkuje auty. Z bytu jsou krásné výhledy do okolí, a jde o slunný byt. Byt má čtyři neprůchozí pokoje, dvě plnohodnotné koupelny s WC, množství úložného prostoru v podobě vestavěných skříní, sklepní kóje a prostoru v samostatné uzamykatelné garáži. Rozměry pohodlně velké garáže: vjezdová vrata jsou široká 260 cm, výška vrat je přes 220 cm, výška garáže je cca 260 cm, šířka garáže je 270 cm a délka garáže je 495 cm - jde tedy o pohodlnou velkou garáž. Podlahy bytu: dlažba, koberce, dubové parkety. Na stěnách luxusní sádrové omítky. Topení vlastní ústřední na plynový kotel i s vlastním ohřevem vody. Kuchyně vybavená: sporákem (plyn a elektřina), lednice s mrazákem, pračka, myčka, mikrovlnná trouba, masivní protipožární bezpečnostní dveře. Nábytek možno doplnit dle přání nájemníka. Dostupný satelit, internet, telefonní linka. K dispozici další garáž za příplatek 2 500,-Kč + služby. Byt je v 1. patře (2. nadzemní podlaží) domu s dvěma podlažími (nad bytem tedy již nikdo nebydlí). Byt je cca 10 let po kompletní rekonstrukci. Nastěhování možné dle dohody - volné ihned. Cena 39 000 + poplatky cca 2 500 + elektřina a plyn, které se převádí na nájemce. Parkování před domem pro rezidenty je velmi bezproblémové. Nově: zateplení fasády a rekonstrukce střechy. Připojení k internetu je možné bez problému. Pro info volejte makléře. Nájemce při uzavření smlouvy hradí 39 000 Kč nájem + 2 500 Kč poplatky na první měsíc bydlení + 50 000 Kč jistotu + 47 190 Kč provizi RK. Byt si lze pronajímat dlouhodobě, přičemž minimální lhůta nájmu je jeden rok. Dům je energetická třída D.
- Dispozice bytu:5+1
- Podlaží v domě:2
- Počet podlaží v domě:2
- Celková podlahová plocha:130 m2
- Druh objektu:cihlová
- Stav objektu:velmi dobrý
- Vlastnictví:osobní
- Lodžie:10 m2
- Sklep:3 m2
- Energetická náročnost budovy:D - Méně úsporná
- Ukazatel energetické náročnosti budovy:128 kWh/m²
- Energetický ukazatel
podle vyhlášky:č. 264/2020 Sb. - Energetický průkaz:stáhnout
