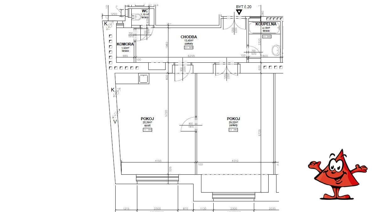
Pronájem neobvykle prostorného světlého bytu o dispozici 2+kk se šatnou ve 4. patře cihlové budovy s výtahem, Praha 7 - Holešovice, ulice Schnirchova. Byt se skládá ze dvou velkých průchozích místností (se samostatnými vchody), vstupní haly, komory/šatny a koupelny s toaletou. V kuchyňské části je kuchyňská linka se spotřebiči (lednice, mrazák, myčka, sklokeramická deska, el. trouba), podlahy z části vinylové, z části renovované parkety, z části dlažba, okna dřevěná.
Byt prošel před cca 5 lety kompletní rekonstrukcí. Ohřev vody a topení zajištěny plynovým kotlem. Nezařízeno nábytkem, nad rámec výše uvedených spotřebičů je k dispozici pračka.
V pěší dostupnosti veškeré potřebné služby a obchody (přímo v domě Albert), OC Stromovka, park Stromovka, tramvajová zastávka Veletržní palác, ke stanici metra "C" Vltavská a železniční stanici Praha-Bubny cca 500 metrů.
Jistota a provize ve výši jednoho nájemného.
- Dispozice bytu:2+kk
- Podlaží v domě:5
- Počet podlaží v domě:5
- Celková podlahová plocha:75 m2
- Druh objektu:cihlová
- Stav objektu:dobrý
- Vlastnictví:osobní
- Umístění objektu:centrum obce
- Energetická náročnost budovy:D - Méně úsporná
- Ukazatel energetické náročnosti budovy:156 kWh/m²
- Energetický ukazatel
podle vyhlášky:č. 78/2013 Sb.
